Częściowe dostosowanie budynku Centrum Usług Społecznych w Koszalinie do potrzeb osób z niepełnosprawnościami
-
Unieważnienie zapytania_OUS 262 32 2025.pdf
Typ pliku: PDF, Rozmiar: 144 KBWytworzył:Udostępnił:Barbara Buksalewicz-Kobierska(2025-12-22 14:32:51)Ostatnio zmodyfikował: -
Informacja z otwarcia_OUS 262 32 2025.pdf
Typ pliku: PDF, Rozmiar: 96 KBWytworzył:Udostępnił:Barbara Buksalewicz-Kobierska(2025-12-22 14:32:39)Ostatnio zmodyfikował: -
Zapytanie ofertowe _OUS 262 32 2025.pdf
Typ pliku: PDF, Rozmiar: 215 KBWytworzył:Udostępnił:Tomasz Dygoń(2025-12-05 14:53:56)Ostatnio zmodyfikował: -
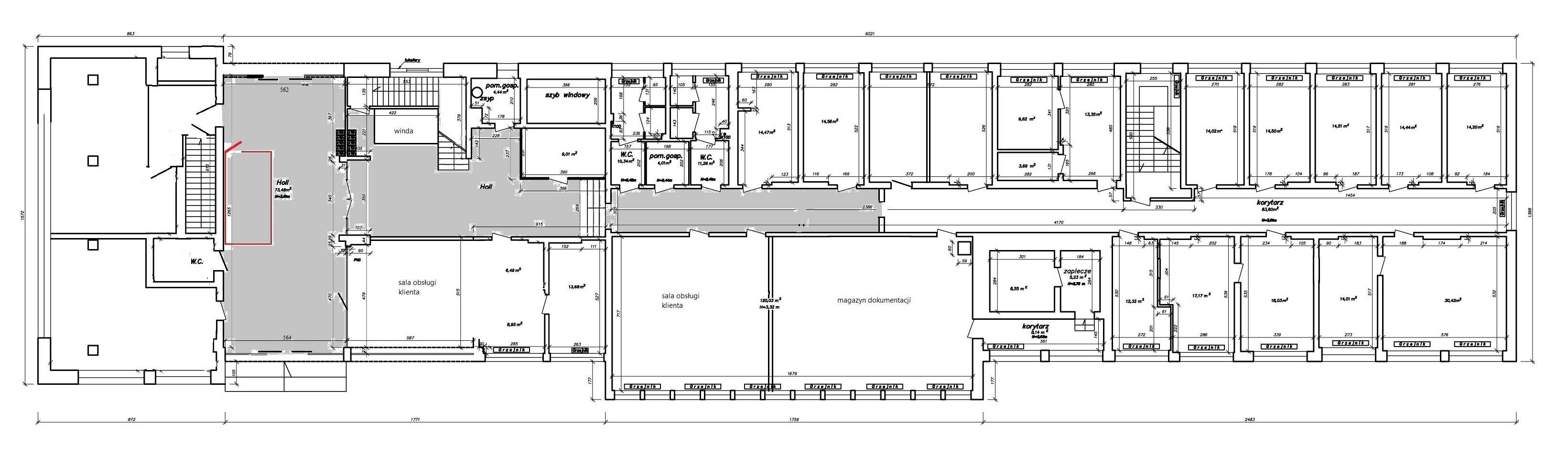
Załącznik nr 5_Rzut obszaru objętego pracami.jpg
Typ pliku: JPG, Rozmiar: 497 KBWytworzył:Udostępnił:Tomasz Dygoń(2025-12-05 14:53:55)Ostatnio zmodyfikował: -
Załącznik nr 4_Wizualizacje.pdf
Typ pliku: PDF, Rozmiar: 1 MBWytworzył:Udostępnił:Tomasz Dygoń(2025-12-05 14:53:54)Ostatnio zmodyfikował: -
Załącznik nr 3 Wzór umowy.pdf
Typ pliku: PDF, Rozmiar: 221 KBWytworzył:Udostępnił:Tomasz Dygoń(2025-12-05 14:53:52)Ostatnio zmodyfikował: -
Załącznik nr 2_Wykaz wykonanych robót.docx
Typ pliku: DOCX, Rozmiar: 108 KBWytworzył:Udostępnił:Tomasz Dygoń(2025-12-05 14:53:50)Ostatnio zmodyfikował: -
Załącznik nr 1_Formularz ofertowy.docx
Typ pliku: DOCX, Rozmiar: 111 KBWytworzył:Udostępnił:Tomasz Dygoń(2025-12-05 14:53:48)Ostatnio zmodyfikował: